top of page
PLANIMETRY
A CONTINUACION SE MUESTRAN LOS DIFERENTES PROYECTOS REALIZADO.
PARQUE EOLICO CARRETO
Elaboración y Diseño de Planimetría Arquitectónica (plantas, Cortes, Alzados y modelado en 3 dimensiones), Detalles Arquitectónicos, manejo de sombras, escala de grises e intensidades.
Elaborado por medio de los software:
Autocad, Revit, Lumion y Photoshop.
- Realizado para (Innova SAS)
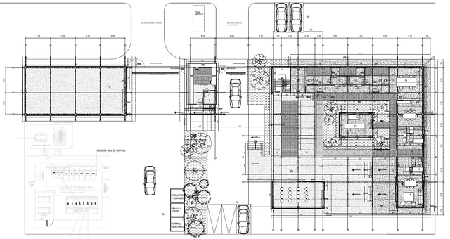
AGRICULTURAL PLANT
Elaboración y Diseño de Planimetría Arquitectónica (plantas, Cortes, Alzados y modelado en 3 dimensiones), Detalles Arquitectónicos, manejo de sombras, escala de grises e intensidades.
Elaborado por medio de los software:
Autocad, Revit, Lumion y Photoshop.
- Realizado para (Ingebyp SAS)
Elaboration and Design of Architectural Planimetry (plans, cuts, elevations and 3D modeling), Architectural Details, shadows, grayscale and intensities.
Elaborated by means of the software:
Autocad, Revit, Lumion and Photoshop.
- Performed for (Ingebyp SAS)
CASA CAÑAVERAL
Elaboración y Diseño de Planimetria Arquitectónica (plantas, Cortes, Alzados y modelado en 3 dimensiones), Diseño de muebles, Detalles Arquitectónicos, escala de grises e intensidades.
​
Elaborado por medio de los software:
Autocad.
​
- Proyecto realizado para Recintos Arquitectura SAS
DISEÑO OFICINA
Elaboración y Diseño de Planimetria Arquitectónica (plantas, Cortes, Alzados), Diseño de muebles, Detalles Arquitectónicos.
​
Elaborado por medio de los software:
Autocad.
​
Proyectos realizados:
​
- Realizado para Recintos Arquitectura SAS
bottom of page























